Home
Over ons
Portfolio
Nieuws
Contact
Terug naar alle projecten
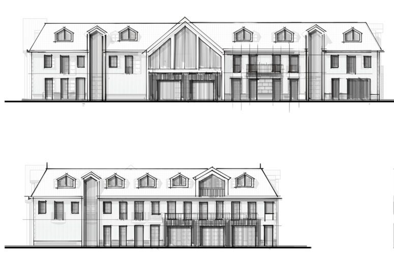
Eilandhotel Texel
Plaats:
De Cocksdorp
Jaar:
2023
Staging Site